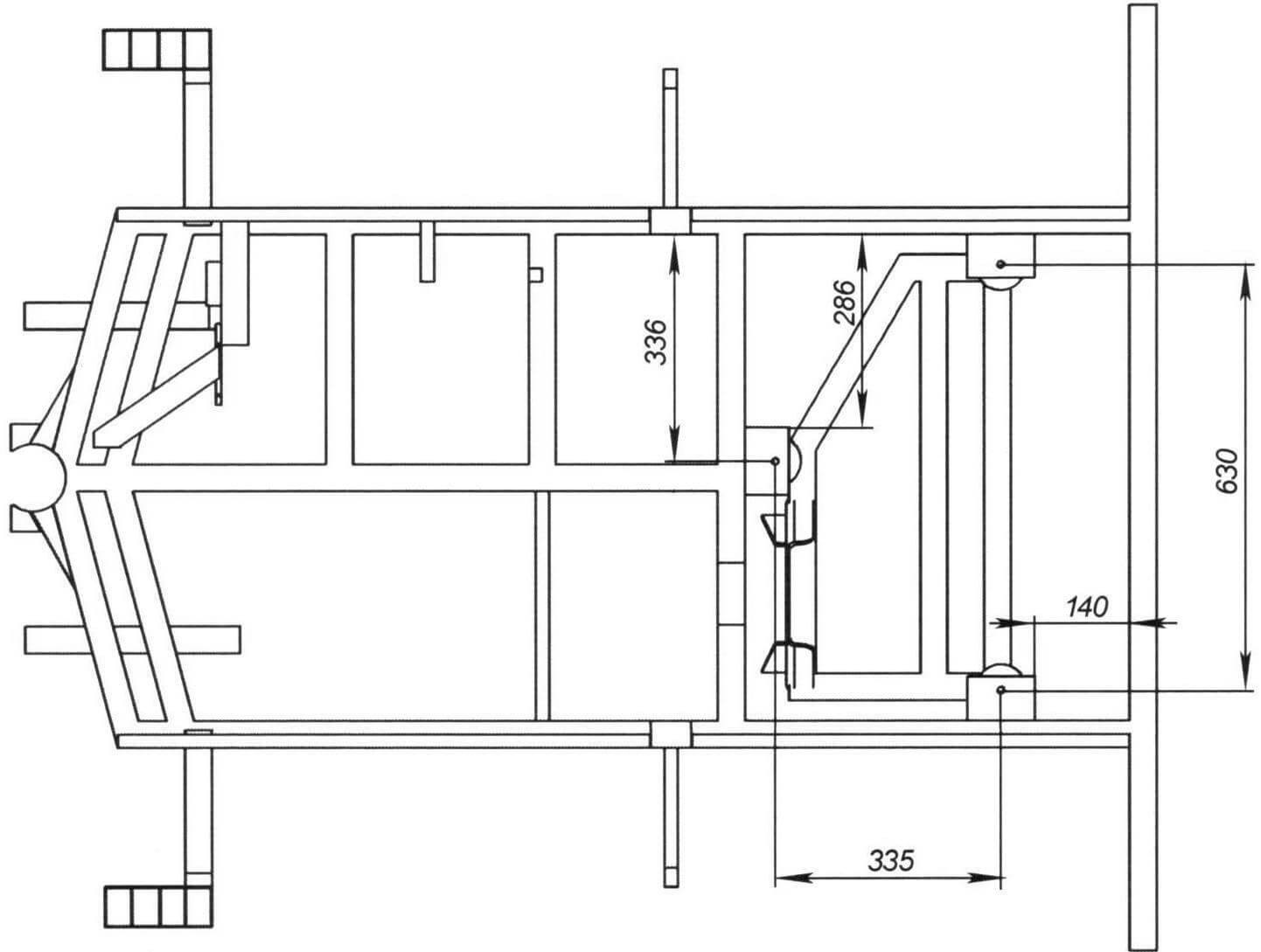
Чертеж рамы караката
25.07 2025 какой день
Любимая моя стихи песня
Шлем уровень защиты
Новейшие легендарные игры
Нарушение координации движений речи
Установить систему без
Грузовой транспорт система
Причины роста рынка
Узи кострома телефон
Рассказывают цунами
Законность как правовой институт
Эффективное средство от мышей на даче
Как снизить риск заражения
Чертеж рамы караката 118 фотографий



















































































































