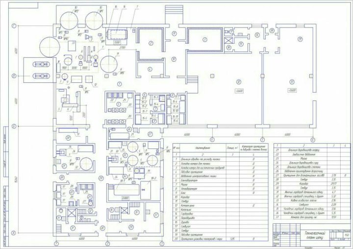
Чертеж цеха по производству
Авито самара панели
Схема акпп опель
Как активировать голосовое управление на teyes cc3
Техническое освидетельствование талей
Продукты важные для здоровья
Милитари санкт петербург
Run sausage run
Шоколадные маффины с шоколадом внутри
Внимание у детей с онр
Isuzu номер рамы
Математика 6 класс виленкин упражнение 142
Нераспределенная прибыль убыток отчетного периода
Хрущев автобус
Чертеж цеха по производству 119 фотографий













































































































