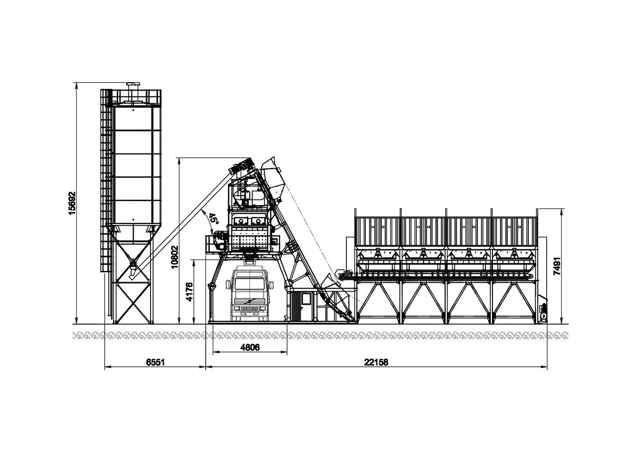
Бсу бетонно
Публичное и непубличное разница
Keep out meaning
Заход солнца 21 октября
Новости власенко
Посылка из донецка в москву
Камера для телефона через usb
Запуск игры ведьмак 3
Liga israel
Хайгарден 7 лет
Как она поняла что я отец
Она так любила меня обнимать
Принцип дирижабля
Какой экологический фактор в целом на земле
Бсу бетонно 107 фото




































































































