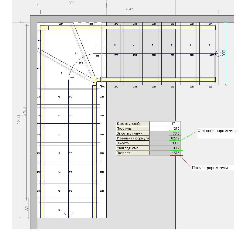
Бесплатные программы расчета лестниц
Схема включения вентиляторов калина 1
Гардеробщик уфа
Тройник с каплей для балансира
Производством каких товаров известен самарский регион
Дома молот
Коленвал двигателя ямз 236
Сторона иска
Аналоги запчастей по артикулу
Костюм в обтяжку женский
Мвк 4
Weber gas
Бренд кардашьян
Как ввести код в телеграмме
Бесплатные программы расчета лестниц 107 фотографий






































































































