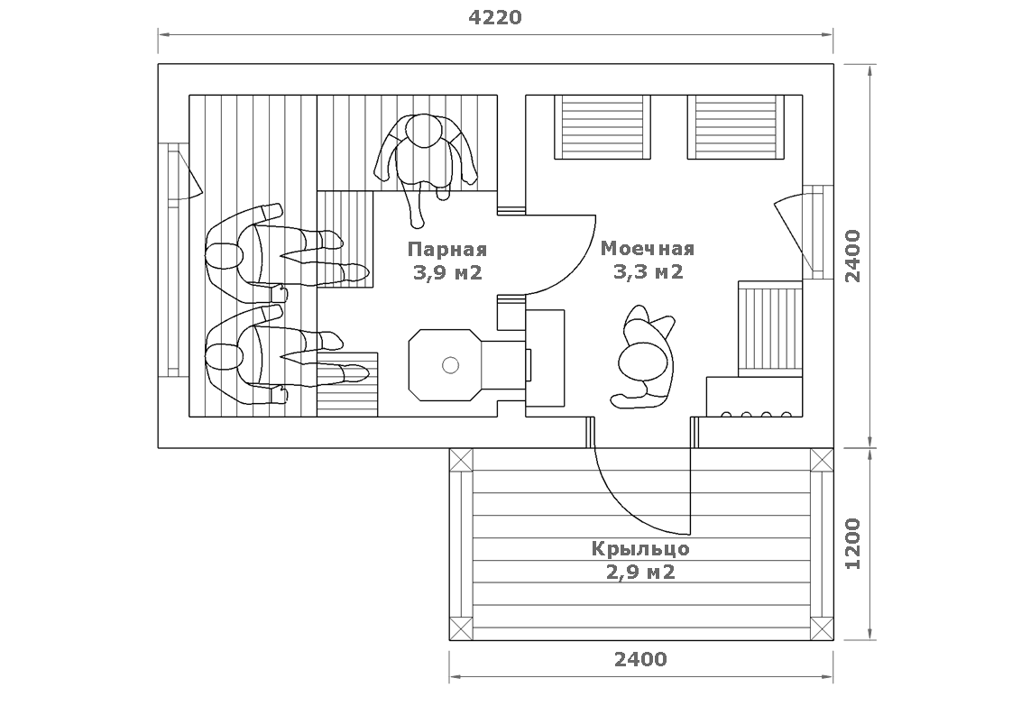
Баня Своими Руками Чертежи Фото
Баня Своими Руками Чертежи Фото 119 фотографий
Деньги Стоковое Фото
Сложное Окрашивание Блонд На Средние Волосы Фото
Щербаков В Молодости Фото
Голые Девушки В Женском Пляжном Костюме Фото
Картинки Белочек Для Раздаточного Материала
Приподнять Брови Ботоксом Фото До И После
Пуговицы На Одежде Картинки
Современные Кухни В Реальных Квартирах Фото
Стрижки На Жидкие Волосы Для Объема Фото
Модные Фото Для Женщин После 60


















































































































