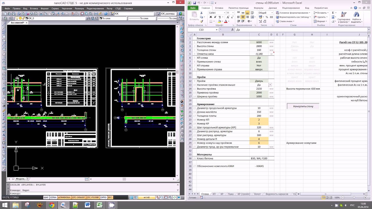
Альфа спдс 3
Военно патриотический лагерь авангард владимирская область
Ледобур тонар размеры
Замена радиатора печки филдер
Luxury mercedes benz
Ведущий про видео
Подсолнечный парафин
Химия для бассейна как пользоваться
Почему корея не китай
Калийная соль удобрение названия
Мобы майнкрафта 1.14
Не удалось найти сертификат в системном хранилище
Robots animation 18
Photoshop фоток
Альфа спдс 3 109 фото











































































































